- Bauherrschaft Tiefbauamt Graubünden
-
Planungsteam
dsp Ingenieure + Planer AG (Federführung) /
ARENAS & ASOCIADOS SLP/ INGEGNERI SPP SA /
Dr. Vollenweider AG / Feddersen & Klostermann GmbH - Leistungen Projektwettbewerb, 4. Rang von 41 Eingaben
- Bearbeitung 2021
- Baukosten Geschätzt: ca. CHF 43 Mio. inkl. Anschlussbrücke
-
Kenndaten
Gesamtlänge: 542 m (Bogen-) + 74 m (Anschlussbrücke)
Bogenspannweite, -schlankheit: 280 m, 1/5.45
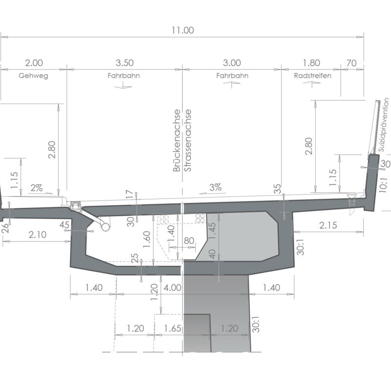
Höhe Hohlkastenquerschnitt: 2.15 m
Für den neuen Anschluss an der Schanfiggerstrasse (Chur) wurde eine Bogenbrücke aus Beton mit einer Gesamtlänge von 542 m vorgeschlagen.
Die ausgewählte Linienführung erlaubt die Anordnung beider Kämpfer auf dem Felsrücken oberhalb der steilen Talflanken, womit sich der Bogen gut in das Tal eingliedert und unnötige Erschwernisse für die Erstellung vermieden werden. Mit der Wahl der Bogenspannweite von 280 m sowie der Festlegung der Kämpferpositionen ergibt sich ein wohlproportionierter, schlanker Bogen mit einer Pfeilhöhe von 51.40 m und einer Bogenschlankheit von 1/5.45 – was sowohl aus statischer als auch gestalterischer Sicht optimal ist. Der Bogen besteht aus zwei bezüglich der Brückenachse symmetrischen
Hohlkastenquerschnitten. Diese Aufteilung gewährleistet
Stabilität in Querrichtung. Der Brückenträger läuft mit konstantem Querschnitt und identischen Spannweiten von 40 m durch. Dies schafft einen regelmässigen Rhythmus über die Gesamtlänge. Der Bogen wird, ausgehend von beiden Talflanken, im Freivorbau
erstellt. Die Stabilisierung im Bauzustand wird mit temporären Rückhaltekabeln sichergestellt.
Auszüge aus dem Jurybericht:
«….eine ausgewogene, schlanke Bogenbrücke ohne unnötige Elemente, die weder mit der Umgebung noch mit bestehenden Bauten in Konkurrenz tritt.….
Das Projekt weist einen hohen Reifegrad auf und lässt kaum Fragen offen.»